YUKI NISHI | 展示会デザイナー・CGクリエイター
Profile
YUKINISHI
展示会デザイナー・CGクリエイター
1990年生まれ 大阪府在住
展示会デザイナー8年目
空間デザイン・ディスプレイアイテムのセレクト・企画のアイデア発案
休日は3Dで作品をつくっています
展示会デザイナー8年目
空間デザイン・ディスプレイアイテムのセレクト・企画のアイデア発案
休日は3Dで作品をつくっています
Projects
-
Sustainability Sauna Trailer
- OUTLINE
-
スギの足場板の廃材で作るトレーラーサウナの外装・内装3DCGパース作成を担当しました。
[使用ソフト:Vectorworks / Blender / AdobePhotoshop]
- CREDIT
-
設計:Yasuyuki Kitamura
パース制作:Yuki Nishi
-
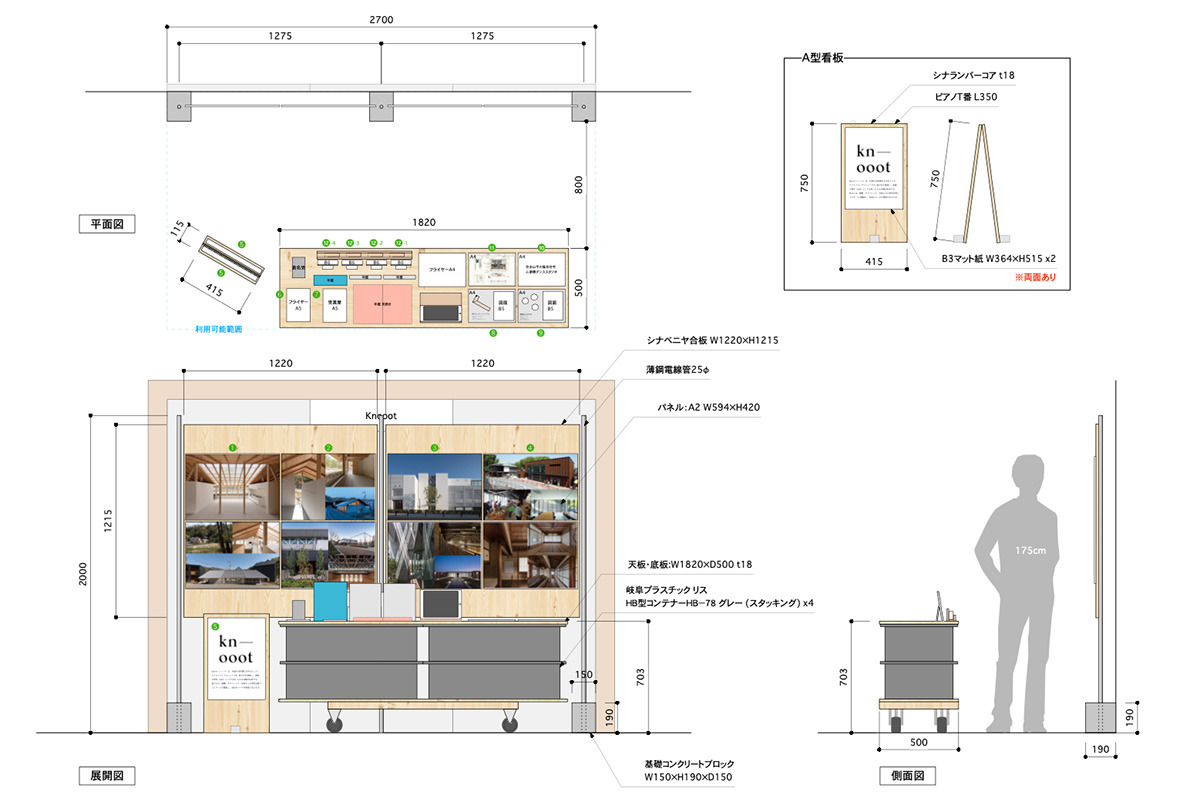
空間演出デザインフェスタ2022 Knoootブース
- OUTLINE
-
大阪産業創造会館で行われた空間演出デザインフェスタ2022展示会のKnoootブース。
設計と印刷物データ作成を担当しました。
[使用ソフト:Vectorworks / Adobe Illustrator]
- CREDIT
-
設計:Yasuyuki Kitamura / Yuki Nishi
図面制作 / 印刷物データ:Yuki Nishi

-
心斎橋ダンススタジオ
- OUTLINE
-
心斎橋にオープンするダンススタジオの内装パース制作を担当しました。
[使用ソフト:Blender / Adobe Photoshop]
- CREDIT
-
建築設計:Yasuyuki Kitamura
3Dパース制作:Yuki Nishi


-
スチールめっきプランター
- OUTLINE
-
商品のWEBページ販売用のサイズラインナップを3Dで製作しました。
[使用ソフト:Blender]
- CREDIT
-
設計:Yasuyuki Kitamura
3D制作:Yuki Nishi



-
クリームソーダの入道雲
- OUTLINE
-
夏に入道雲を見たときに思いついて家に帰って描いたものです。
[使用ソフト:Adobe Photoshop]
- CREDIT
- Illustrator:Yuki Nishi

-
タコ型宇宙人の地球侵略
- OUTLINE
-
コロナ禍で気持ちが落ち込んでいたときに消しゴムハンコを掘ってみたところ楽しくなり、製作したものです。スマホの壁紙サイズで制作。
[使用ソフト:Adobe Photoshop]
- CREDIT
- Illustrator:Yuki Nishi

